
Moderná kancelária na Patrónke, Westend Tower
- Prenájom
- Kancelárie
- 1 izb
- 21.4 m2
- Bratislava-Karlova Ves
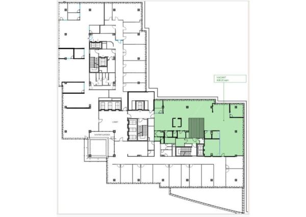
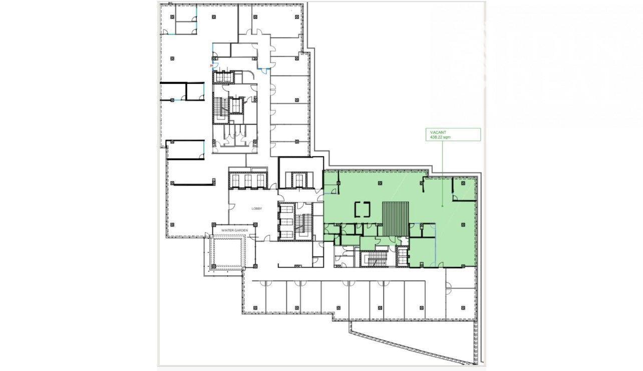
EDEN real ponúka na prenájom nadštandardné administratívne priestory o výmere 438,22 m2 na 6. posch. Administratívne priestory sa nachádzajú v budove Aupark Tower, ktorá ponúka prémiové vysokokvalitné kancelárske priestory.
Priestory je možné na základe požiadaviek klienta upraviť v štandarde (sadrokartónove priečky, interiérové dvere, koberce, osvetlenie), v resp. vo vyžiadanom nadštandarde.
Cena nájmu: 15,25 – 16,50 €/m2/mesiac + DPH
Servisné poplatky: 4,20 €/m2/mesiac + DPH
Priama spotreba: vlastná spotreba médií
Parkovacie miesto:
- externé miesto: 100 - 120 €/mesiac + DPH
- parkovací dom: 150 €/mesiac + DPH
Doba nájmu: min. 60 mesiacov
Priestory môžu byť upravené podľa dohody s nájomcom
ŠTANDARD KANCELÁRIÍ
- Interiérové žalúzie
- Zvlhčovače
- Tepelné konvektory
- Chladenie na fasádu
- Otvárateľné okná
- Zdvojená podlaha
- Vysoko variabilné kancelárske priestory
- Sklenené priečky
- Samostatné elektromerače
- Floor boxy
- Otvorený alebo znížený strop
ŠTANDARD BUDOVY
- neobmedzený prístup do budovy 24/7/365
- 6 veľkých a dizajnových výťahov a 3 nákladné výťahy
- komplexný strážny a monitorovací systém
- inteligentný systém ovládania budovy
- elektronický protipožiarny alarm systém
- priame prepojenie s Aupark shopping centre
- 3+1 hodina zadarmo parkovanie pre návštevníkov
- neustála technická údržba, upratovacia a bezpečnostná služba 24/7
A+ BUDOVA:
-efektívna a komfortná budova
- veľmi nízke prevádzkové náklady
- kancelárie vybavené novými fancoilami a LED svietidlami
- najnovší inteligentný systém ovládania budovy
- využívanie umelej inteligencie na nastavovanie efektívnej prevádzky
- možnosť pre nájomcov vybudovať smart kancelárie novej generácie
- o 40% vyšší prívod vzduchu ako je norma
- kvalitný zvlhčovaný vzduch
- dosková rekuperácia eliminujúca vírusové ochorenia
DOSTUPNOSŤ:
5 minút na hlavnú železničnú stanicu
3 minúty autom na Petržalskú vlakovú stanicu
1 minúta najbližšia autobusová zastávka
1 minúta napojenie na diaľnicu smer AU, CZ, HU
11 minút autom na Letisko M. R. Štefánika – Bratislava
40 minút autom na letisko Schwechat
1 minúta priame napojenie na viaceré cyklotrasy
Aktuálne voľné kancelárske priestory v budove AUPARK TOWER:
4. posch., 226,62 m2, voľné dohodou
6. posch., 438,22 m2, voľné
8. posch., 246,38 m2, voľné ihneď
Ulica: | Einsteinova |
---|---|
Obec: | Bratislava-Petržalka |
Okres: | Bratislava V |
Kraj: | Bratislavský kraj |
Druh: | Objekty |
Typ: | Prenájom |
Typ objektu: | Kancelárie |
Iné: |