
Vysokokvalitné kancelárie v Aupark Tower, 8.posch.
- Prenájom
- Kancelárie
- 246.38 m2
- Bratislava-Petržalka
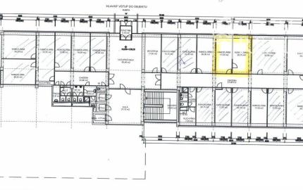
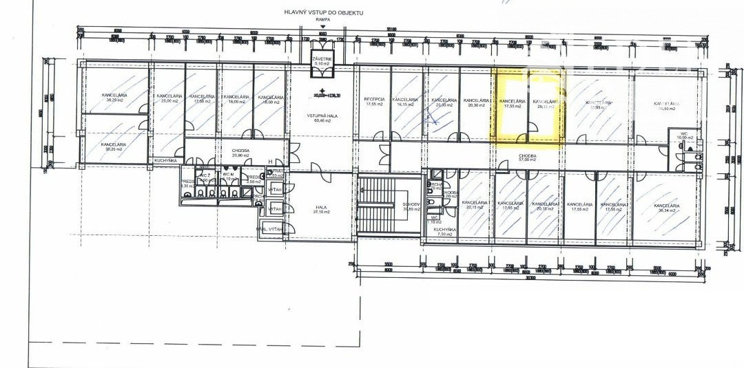
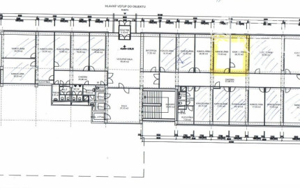
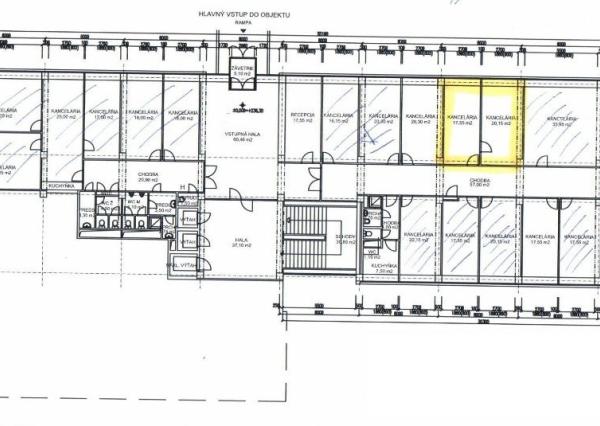
EDEN real ponúka na prenájom 2-kanceláriu na prízemí administratívnej budovy s garážovým domom.
Kancelárie sú prechodné, s výmerou: 17,5 m2 a 20,15 m2. V kanceláriách je klimatizácia.
Záujemca neplatí províziu!
NÁJOMNÉ:
Cena za nájom a služby s tým spojené je: 185,- EUR /rok/m² + DPH, t.j. 15,40,-EUR/mesiac/m2 (možnosť odpočtu DPH pre neplatcov DPH)
INTERNET (v réžii nájomcu): optika - RAINSIDE, SWAN, Tcom
PARKOVANIE:
V hromadnej garáži: 80,- EUR s DPH/mesiac/1 miesto
Parkovanie pre návštevy zdarma: na dvore za rampou
Nájom na dobu neurčitú, výpovedná lehota 3 mesiace. Kaucia 2 mesačný nájom s DPH.
VYBAVENIE A SLUŽBY:
• Kancelárie sú klimatizované s prirodzeným vetraním (samostatné ovládanie klimatizačnej jednotky)
• kuchynka na chodbe
• štruktúrovaná kabeláž, optika SWAN, Tele- com, RAINSIDE
• EZS , EPS, napojenie na pult Centrálnej ochrany
• 2 osobné, 1 nákladný výťah, vlastná kotolňa
• recepcia počas dňa - NONSTOP prístup do budovy 24/7/365
• koberce, žalúzie, tieniace rolety
• zriadenie sídla - virtuálna kancelária
• notár, advokát, účtovník v budove
• reklamné plochy
• zasadacia miestnosť na 4.posch. ( cca pre 10-12 ľudí )
• poštový priečinok
BUDOVA:
• tiché prostredie v obvode Bratislava III – Nové mesto
• zrekonštruovaná budova
• denná recepcia
• 6 nadzemných podlaží, 1 podzemné podlažie
• úžitková plocha na prenájom : 3010 m2.
• podlažie uzatvorená chodba ovládaná elektronickým vrátnikom
• na podlaží: cca 10-18 kancelárií s výmerou od 20m2 do 38m2
Interné ID: | 692 |
---|---|
Ulica: | Bárdošova |
Obec: | Bratislava-Nové Mesto |
Okres: | Bratislava III |
Kraj: | Bratislavský kraj |
Druh: | Objekty |
Typ: | Prenájom |
Typ objektu: | Kancelárie |