Používame cookies

Súbory cookie a ďalšie technológie sledovania používame na zlepšenie vášho zážitku z prehliadania našich webových stránok, na to, aby sme vám zobrazovali prispôsobený obsah a cielené reklamy, na analýzu návštevnosti našich webových stránok a na pochopenie toho, odkiaľ naši návštevníci prichádzajú. Viac info

*Obchodné priestory v reprezentatívnom biznis centre pri Kuchajde

Popis nehnuteľnosti

Zdieľať na Facebooku

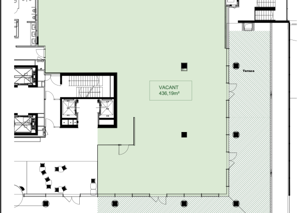
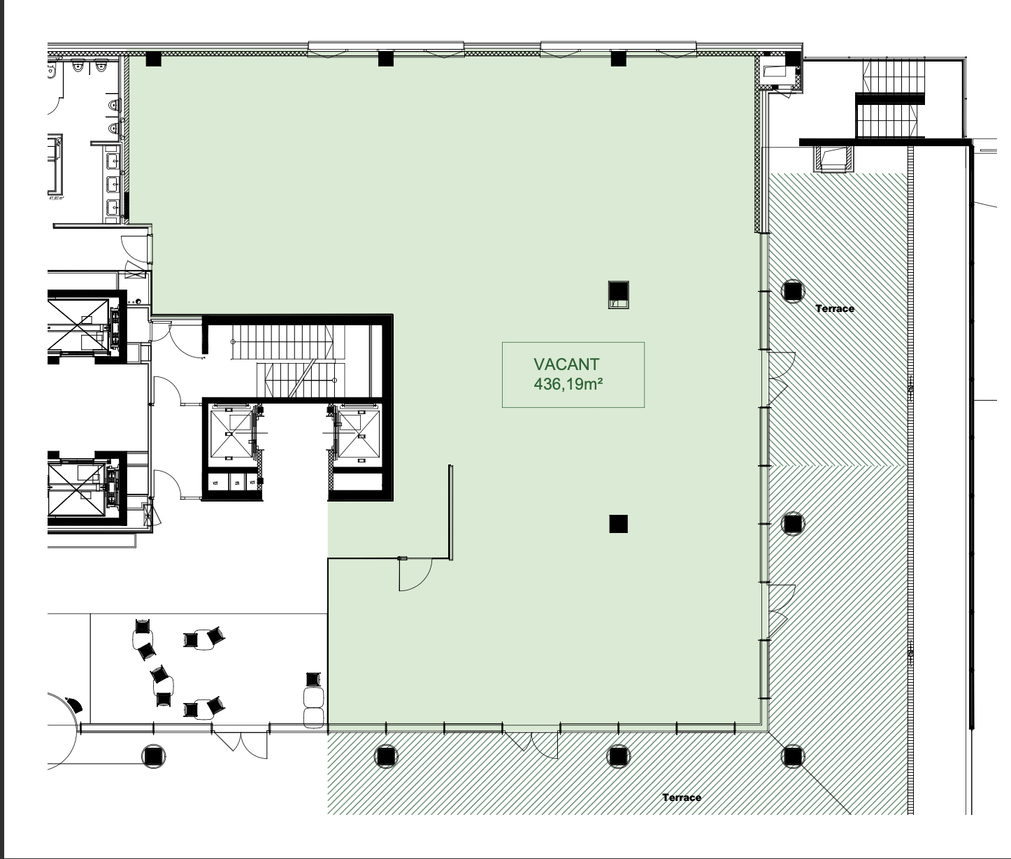
EDEN real ponúka na prenájom obchodný priestor o výmere 436,19 m2 na prízemí administratívnej budovy Lakeside Park 02 umiestnenej v obchodnej štvrti s výbornou infraštruktúrou v blízkosti jazera Kuchajda, len 4 km od Starého Mesta.
Biznis centrum Lakeside Park pozostáva z komplexu 2 budov, stojí v atraktívnej lokalite mestskej časti Bratislava - Nové Mesto.
Priestor je k dispozícii ihneď.

Cena nájmu: 13,90 €/m2/mesiac + DPH
Servisné poplatky: 4,90 €/m2/mesiac + DPH (kúrenie, chladenie, ventilácia, zvlhčovanie, elektrina, plyn)
Parkovacie miesto: 95 EUR/kryté miesto/mesiac + DPH
Doba nájmu: min. 60 mesiacov alebo dohodou

Prenajímateľ pripraví priestor do štandardu budovy.

Záujemca neplatí províziu pre realitnú kanceláriu.

ŠTANDARD BUDOVY
- neobmedzený prístup do budovy 24/7
- strážna služba s kontrolovaným vstupom
- 7 vysokorýchlostných výťahov a 2 obslužné výťahy obsluhujúce parkovacie plochy
- reprezentatívna recepcia
- možnosť využitia konferenčnej miestnosti v budove
- parkovanie pre návštevy so vstupom z Vajnorskej ul. zdarma
- reštaurácia a kaviareň priamo v budove
- stojany na bicykle v podzemí, bezbariérový prístup

LOKALITA:
- obchodná štvrť v mestskej časti Bratislava-Nové Mesto, len 4 km od Starého Mesta
- športoviská a relax pri jazere Kuchajda
- výborná dostupnosť MHD, vlakom aj autom

EDEN real, s.r.o. je členom siete Realitné kancelárie s.r.o.

Vlastnosti

Status:
aktívne
Vlastníctvo:
iné
Úžitková plocha:
436.19 m2
Zastavaná plocha:
436.19 m2
Podlahová plocha:
436.19 m2
Stav:
úplne prerobený
Výťah:
áno
Rok výstavby:
2022
Rok poslednej rekonštrukcie:
2026
Počet poschodí od prízemia vyššie:
13
Pozícia:
Prízemie
Celková plocha:
436.19 m2
Vykurovanie - centrálne:
áno
13,90 €/m2/mesiac
Ulica: Tomášikova
Obec: Bratislava-Nové Mesto
Okres: Bratislava III
Kraj: Bratislavský kraj
Druh: Priestory
Typ: Prenájom
Typ objektu: Obchodné priestory

Lívia Petrovičová EDEN real

Radi Vám poradíme