
Stavebný pozemok so stavebným povolením v centre obce
- Predaj
- Pozemok pre rodinné domy
- 913 m2
- Kráľová pri Senci
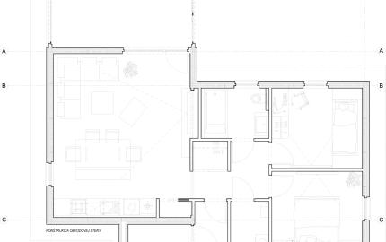
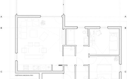
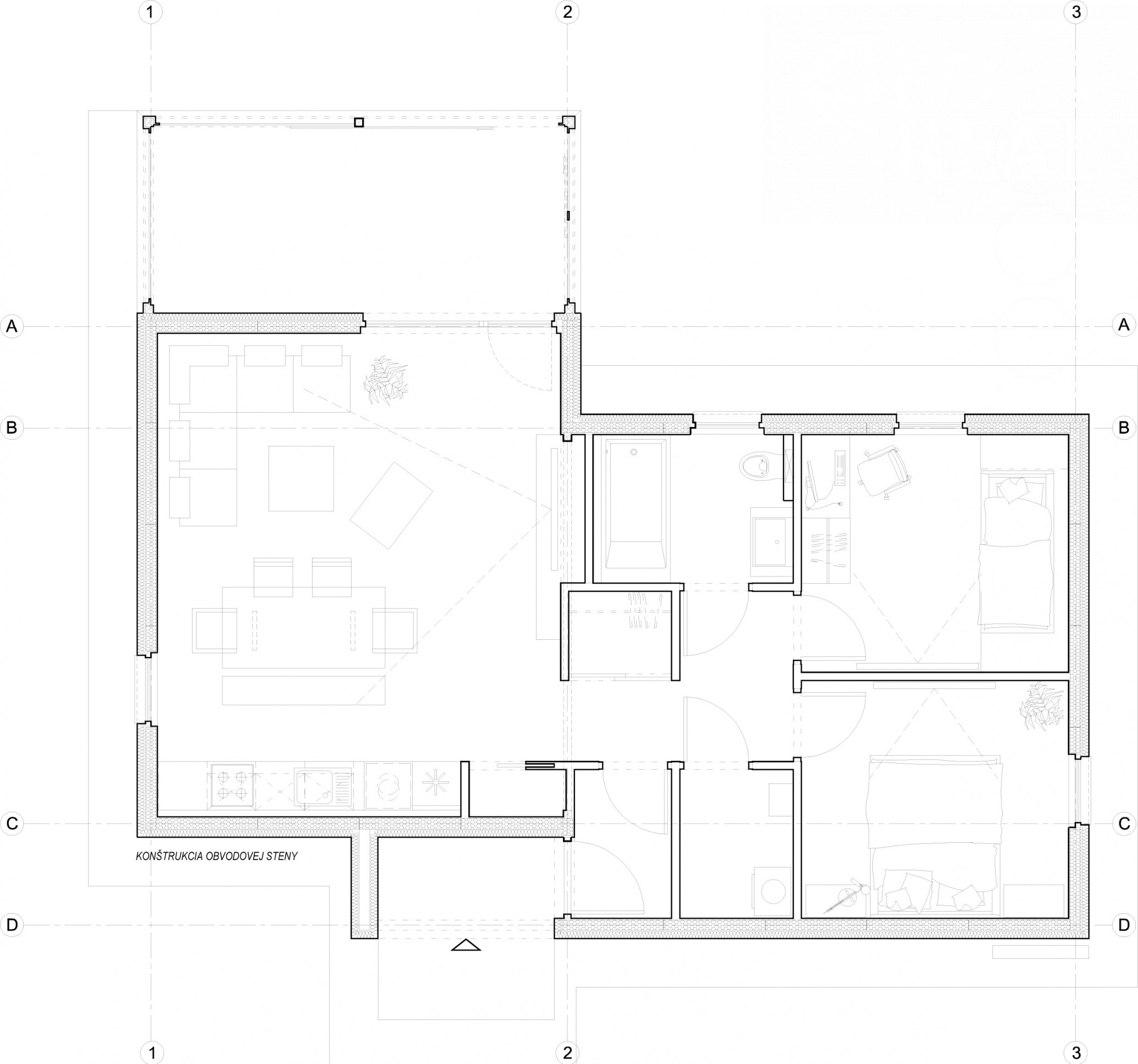
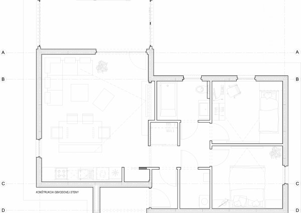
EDEN real ponúka na predaj stavebný pozemok určený na výstavbu rekreačného domu v intraviláne obce Sklené. Navrhovaná celoročne obývateľná chata má jednoduchý obdĺžnikový pôdorys a je jednopodlažná. Projekt je v cene pozemku.
Pozemok pozostáva z 2 častí, väčšia časť o výmere 309 m2 je určená na výstavbu rekreačnej chaty, ku ktorej je vypracovaný projekt, pričom je potrebné len obnoviť stavebné povolenie.
2. časť pozemku je určená na parkovanie 2 áut.
IS: voda - v dosahu pri pozemku
elektrina - na hranici pozemku
Obec: | Sklené |
---|---|
Okres: | Turčianske Teplice |
Kraj: | Žilinský kraj |
Druh: | Pozemky |
Typ: | Predaj |
Typ pozemku: | Pozemok pre rodinné domy |