
Nadštandardné imidžový rooftop office space
- Prenájom
- Kancelárie
- 5 izb
- 137 m2
- Bratislava-Staré Mesto
EDEN real ponúka na prenájom objekt pre obchod, sklad, showroom, fitko..... v Devínskej Novej Vsi.
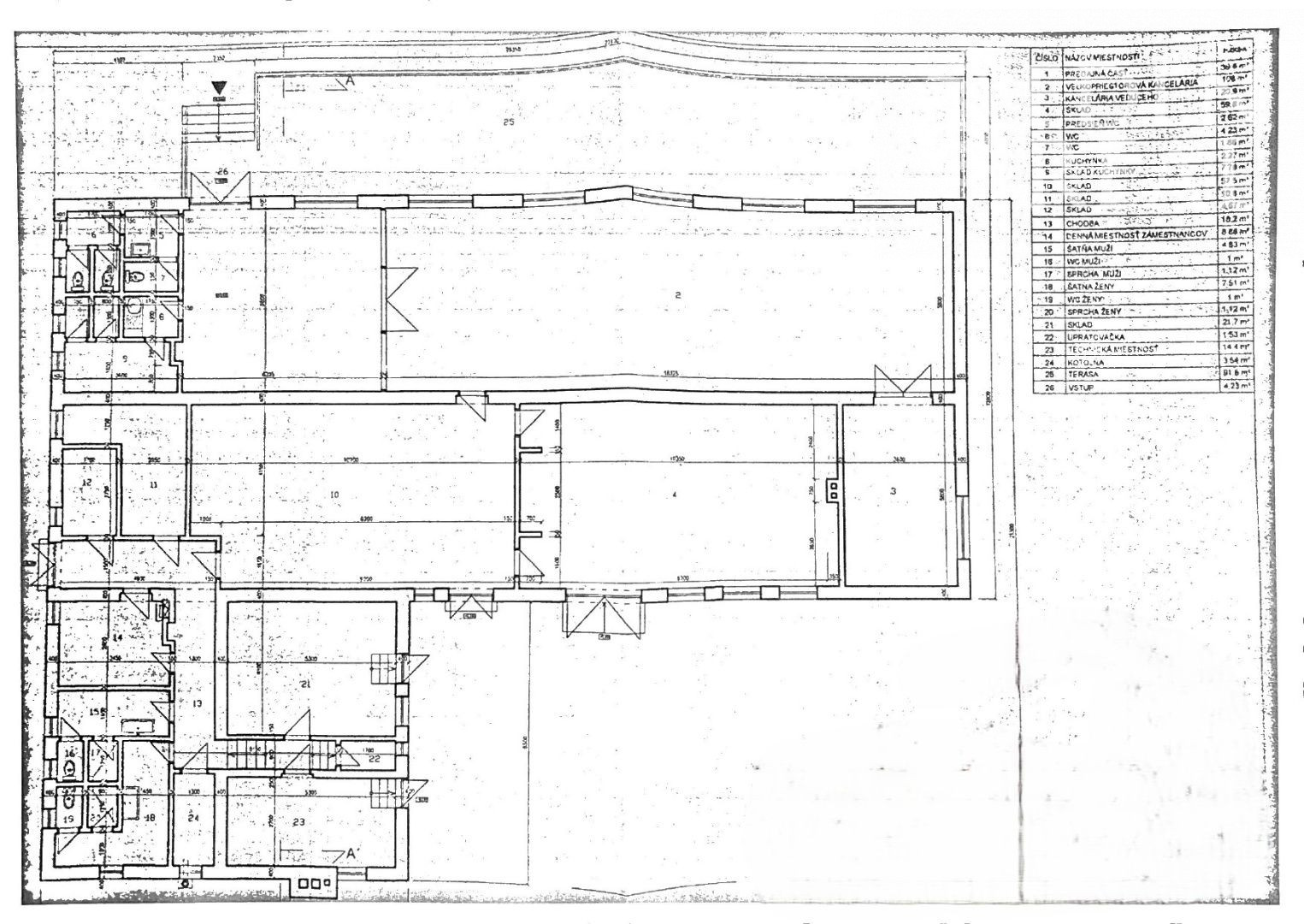
Budova o výmere cca 500 m2 sa nachádza v uzatvorenom a oplotenom areáli s dostatkom parkovacích miest na pozemku o výmere 2000m2.
Budova pozostáva z viacerých miestností - recepcia pri vstupe s kuchynkou, toaleta, 2 menšie sklady, predajná plocha, kancelária, WC, sprcha a šatňa pre zamestnancov, ďalšie menšie miestnosti...
Budova má vlastnú kotolňu.
Cena: 4600 Eur/mesiac + spotreba energií
Záujemca neplatí províziu.
Interné ID: | 664 |
---|---|
Ulica: | x |
Obec: | Bratislava-Devínska Nová Ves |
Okres: | Bratislava IV |
Kraj: | Bratislavský kraj |
Druh: | Objekty |
Typ: | Prenájom |
Typ objektu: | Obchodné priestory |